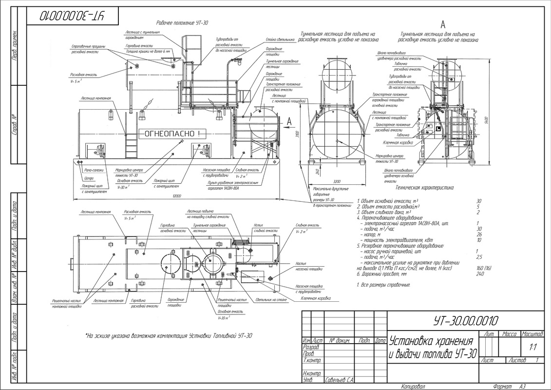
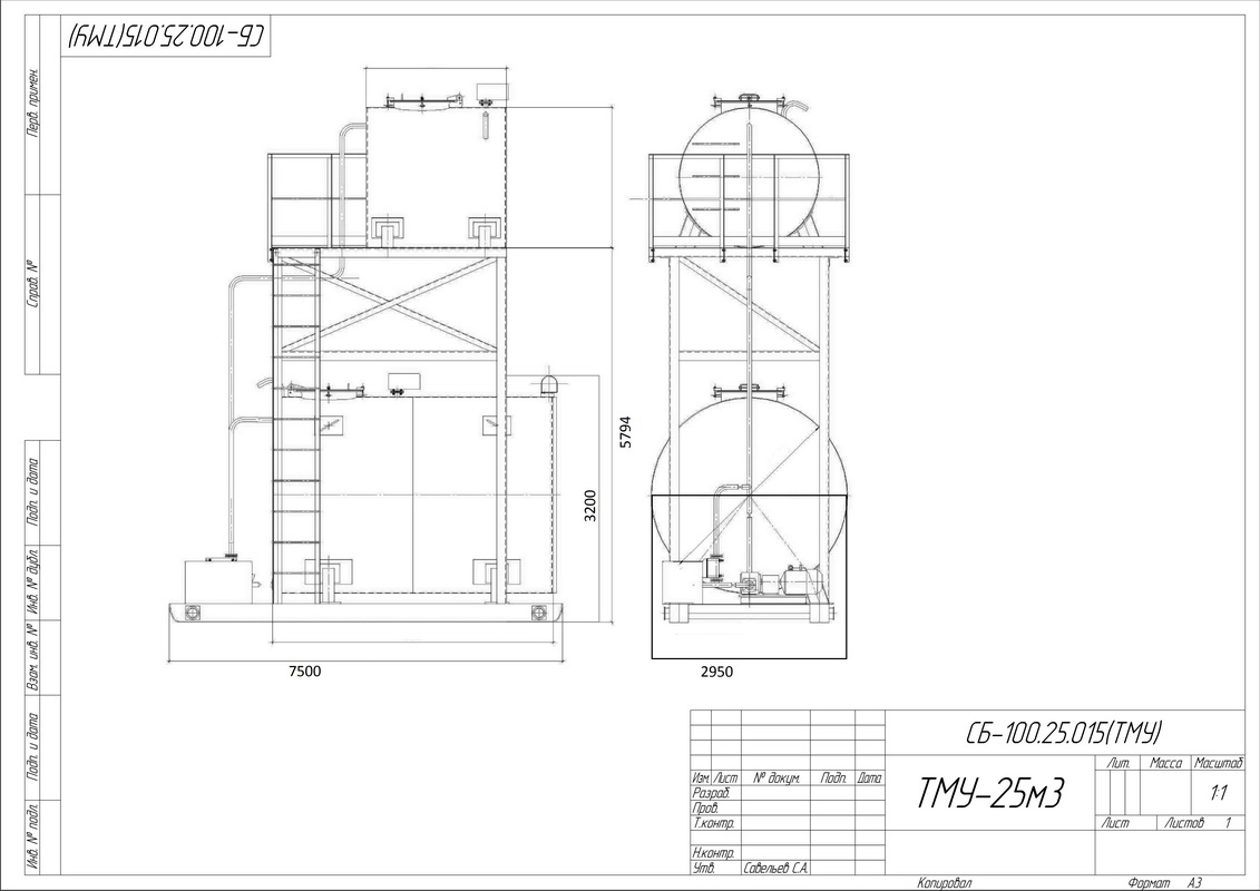
Топливомасляная установка
Установка (ТМУ-10, ТМУ-25, ТМУ-50) предназначена для питания топливом и маслом дизельных агрегатов, применяемых в силовых приводах буровых установок для бурения нефтяных и газовых скважин, а так же для временного хранения топлива и масел.

Установка включает в себя:
- Расходный бак – 1 шт
- Топливный бак – 1 шт
- Рама – 1 комплект
- Верхний масляный бак – 1 шт
- Масляный бак - 2 шт
- Ручной насос РПН-08/30 – 2 шт
- Агрегат электронасосный НМШ – 2 шт
- Трубопроводную обвязку с запорно-распределительной и регулировочной арматурой
Краткая техническая характеристика:
|
Параметры |
Ед. изм. |
Значение | ||
|---|---|---|---|---|
|
|
|
ТМУ-10 |
ТМУ-25 |
ТМУ-50 |
|
Емкость цистерны для запаса топлива |
м3 |
10 |
20 |
45 |
|
Емкость расходного бака |
м3 |
2 |
5 |
5 |
|
Напор топлива, создаваемый расходным баком |
м |
не менее 4,2 |
не менее 4,2 |
не менее 4,2 |
|
Суммарная ёмкость баков для масла |
м3 |
6,5 |
6,5 |
6,5 |
|
Производительность электронасосного агрегата для перекачки топлива |
м3/ч |
18 |
18 |
18 |
|
Производительность электронасосного агрегата для перекачки масла |
м3/ч |
6,5 |
6,5 |
6,5 |
|
Производительность ручного насоса |
л/мин |
50 |
50 |
50 |
|
Габаритные размеры |
мм |
4200х2100х2600 |
7500х2950х5794 |
9400х6900х6000 |
|
Масса |
кг |
не более 3700 |
не более 7600 |
не более 8700 |
https://www.ginerius.com/katalog-oborudovaniya/emkostnoe-oborudovanie-rezervuary/toplivomaslyanaya-ustanovka#sigProId7d4ad0dd74
JoomShopping Download & Support

